2 Bedroom Flat Sold Subject to Contract

Bradstock Road, London

£300,000


Description

2 1 1

  • Two Bedroom Flat
  • Fourth Floor
  • Needs Refurbishment/Modernisation
  • Double Bedrooms
  • Separate Living/Kitchen
  • Private Balcony
  • Lease : 90 Years
  • Excellent Location
  • 0.8 Miles to Hackney Central Station
  • EPC Rating : Awaiting
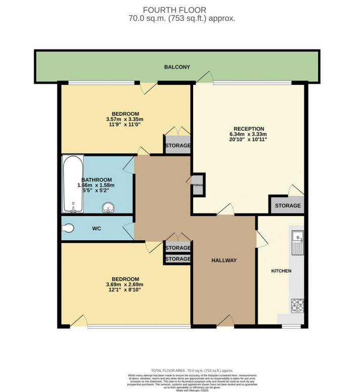
Kings Group are pleased to present this spacious two bedroom flat, offering a bright and airy living space with a private balcony boasting far-reaching city views. While the property requires some updating and work, it presents an excellent opportunity to add value and create a stylish home. The layout includes a well-sized reception room, a separate kitchen, two generous double bedrooms, and a bathroom with separate w/c, making it a comfortable and practical living space.

Ideally located near Homerton station, the flat benefits from excellent transport links and easy access to a range of local amenities. Residents can enjoy nearby cafes, shops, and restaurants, as well as green spaces such as Victoria Park and Hackney Marshes. With Westfield Stratford and the Queen Elizabeth Olympic Park also within easy reach, this property is well-positioned for both convenience and leisure.

Council Tax Band - B
Lease - 90 Years Remaining
Ground Rent - Awaiting
Service Charge - Awaiting
Construction Type - Concrete
Flood Risk - Rivers & Seas: Very Low, Surface Water: Very Low

Nearest Stations

  • Homerton Rail Station - 0.17miles
  • Hackney Central Rail Station - 0.62miles
  • London Fields Rail Station - 0.71miles
  • Hackney Wick Rail Station - 0.75miles
  • Hackney Downs Rail Station - 0.85miles

Calculate Your Stamp Duty

£
Are you a first time buyer?
Is it an investment property?
Is this your Sole Residential Purchase or Is this a Buy To Let / Investment?

Results

Duty To Pay
£10,000.00
Effective Rate
2.5%
Tax Band % Duty

Location

Floorplan for Bradstock Road, London

Similar Properties

SOLDSTC Briaris Close, London - EAID:KingsGroupApi2020, BID:30208-7 Briaris Close, London £365,000

Kings Group are delighted to present this well-maintained two-bedroom ground floor garden flat, ideal for first-time buyers or...

EAID:KingsGroupApi2020, BID:30208-7

SOLDSTC Vicarage Road, London - EAID:KingsGroupApi2020, BID:30208-7 Vicarage Road, London £350,000

Kings Group are pleased to present this beautifully maintained two-bedroom, first-floor period conversion, ideally located just...

EAID:KingsGroupApi2020, BID:30208-7

SOLDSTC Queen Street, London - EAID:KingsGroupApi2020, BID:30208-7 Queen Street, London £350,000

Kings Group is pleased to offer this well-maintained two-bedroom purpose-built flat, ideally located just minutes from White...

EAID:KingsGroupApi2020, BID:30208-7

SOLDSTC Northumberland Park, London - EAID:KingsGroupApi2020, BID:30208-7 Northumberland Park, London £349,995

Kings Group are delighted to offer this larger-than-average, two-bedroom split-level flat, ideally located just moments from...

EAID:KingsGroupApi2020, BID:30208-7